Conjunto de tapa y marco de altura regulable para cargas pesadas, ciego, RKNSL, tamaño nominal 9, acero inoxidable

Código 7408932 | EAN 4012197278274

9
IP55
Descripción de producto
Descripción de producto
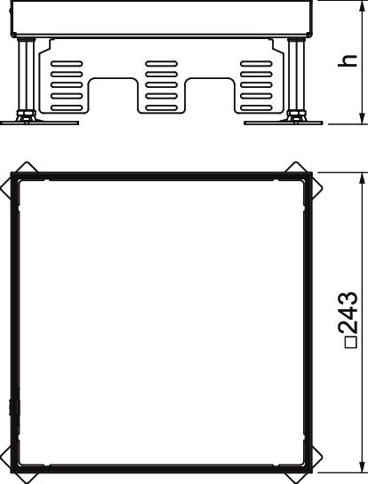
Conjunto de tapa y marco cuadrado de altura regulable y alta resistencia "ciego" de tamaño nominal 9 para crear una abertura de inspección. Montaje en sistemas de canalización, suelos dobles y huecos en suelos limpiados en seco o en húmedo en interiores. Clase de carga 1 a 10 kN. Sólo son apropiados para pavimentos pulidos.

Para la instalación de 3 soportes universales UT4 para 9 mecanismos individuales con anillo/estribo de soporte o 12 dispositivos Modul 45®. Pueden instalarse 3 tapas ciegas APMT5.
  • Verband der Elektrotechnik, Elektronik, Informationstechnik e.V., Deutschland (Asociación de Electrotécnicos Alemanes)
  • Comunidad Europea, Declaración de conformidad según las directivas de la CE
  • Grado de protección IP55
  • Huella de CO₂ (PCF)
  • Embalaje totalmente de cartón reciclado
Datos técnicos

Dimensiones

Altura 105 mm
Altura del piso máx. 150 mm
Altura del piso mín. 105 mm
Ancho 243 mm
Ancho, dimensiones de montaje 244 mm
Apropiado para instalación de suelo técnico
Apropiado para montaje en suelo hueco / técnico
Autorizaciones VDE
Clase de carga pesada 10 kN (OBO SL1)
Cuidados del suelo húmedo
Desacoplable no
Dimensión 243x243x100
Espesor del revestimiento del suelo 16 mm
Grado de protección (IP) mientras se está utilizando IP00
Grado de protección (IP) si no se está utilizando IP55
Grado de protección código IK IK10
Huella de CO2 (GWP) Cradle-to-Gate 23,0247 kg CO2e / 1 Unidad
Longitud 243 mm
Longitud, dimensiones de montaje 244 mm
Margen de nivelación máx. 150 mm
Margen de nivelación mín. 105 mm
Material Acero inoxidable
Medida h 105 mm
Modelo de salida de cable Sin salida de cable
Modelo para carga pesada
Norma EN 50085-2-2
Número de soportes universales 3 x UT4
Profundidad de montaje 105 mm
Sección de suelo/abertura de montaje 244x244
Soportes para alojar cajas portamecanismos no
Tamaño nominal para unidades portamecanismos 9
Tipo de sistema de montaje UT4
Versión Cuadrado
Todos los tipos

Todos los tipos

Tipo Altura del piso mín. Altura del piso máx. Espesor del revestimiento del suelo Medida h Tamaño nominal para unidades portamecanismos Grado de protección (IP) si no se está utilizando Código Cantidad Mín. ud. de venta
RKN3 9 V SL1 16 105 mm 150 mm 16 mm 105 mm 9 IP55 7408932
1 Unidad
RKN3 9 V SL1 21 110 mm 155 mm 21 mm 110 mm 9 IP55 7408934
1 Unidad
Accesorios

Accesorios del sistema

Productos Tipo Código Cantidad Mín. ud. de venta
Unidad de nivelación RKNEV2 Unidad de nivelación RKNEV2 RK NEV2 110 7405815
1 Unidad de embalaje
Cubierta de protección acústica Cubierta de protección acústica SRS 4 7405798
4 Unidad
Molde de terrazo para conjuntos de tapa y marco con altura regulable, tamaño nominal 9 Molde de terrazo para conjuntos de tapa y marco con altura regulable, tamaño nominal 9 SK RK9 7404372
1 Unidad
Tapa de montaje de alta resistencia para UZD 350, tamaño nominal 9 Tapa de montaje de alta resistencia para UZD 350, tamaño nominal 9 DUG 350-3 9SL 7401410
1 Unidad
Descargas

Descargar

Declaración de conformidad UE RKN3 9 V SL1 16 / 7408932 , 0.17MB , pdf
Descargar

RKN3 9 V SL1 16 / 7408932
Descargar