Pieza en T EI90 para canal de protección contra el fuego PLCS D091220

Código 7217914 | EAN 4012196836772

Gris
Descripción de producto
Descripción de producto
Pieza en T para canal de protección contra el fuego PYROLINE® Con S EI90, tipo PLCS D091220 compuesto por hormigón ligero con fibra de vidrio, resistente al agua y a las heladas para la realización de derivaciones en T a lo largo del canal. Los conectores montados aseguran un montaje rápido in situ, mientras que las cubiertas colocadas sin apretar garantizan una inspección y reasignación rápidas.
Incluidos tornillos de unión y cintas selladoras.
  • Comunidad Europea, Declaración de conformidad según las directivas de la CE
Datos técnicos

Datos técnicos

Clasificación EI - Canal de instalación 90
Color Gris
Composición del material aislante Hormigón ligero de fibra de vidrio
Con perforación no
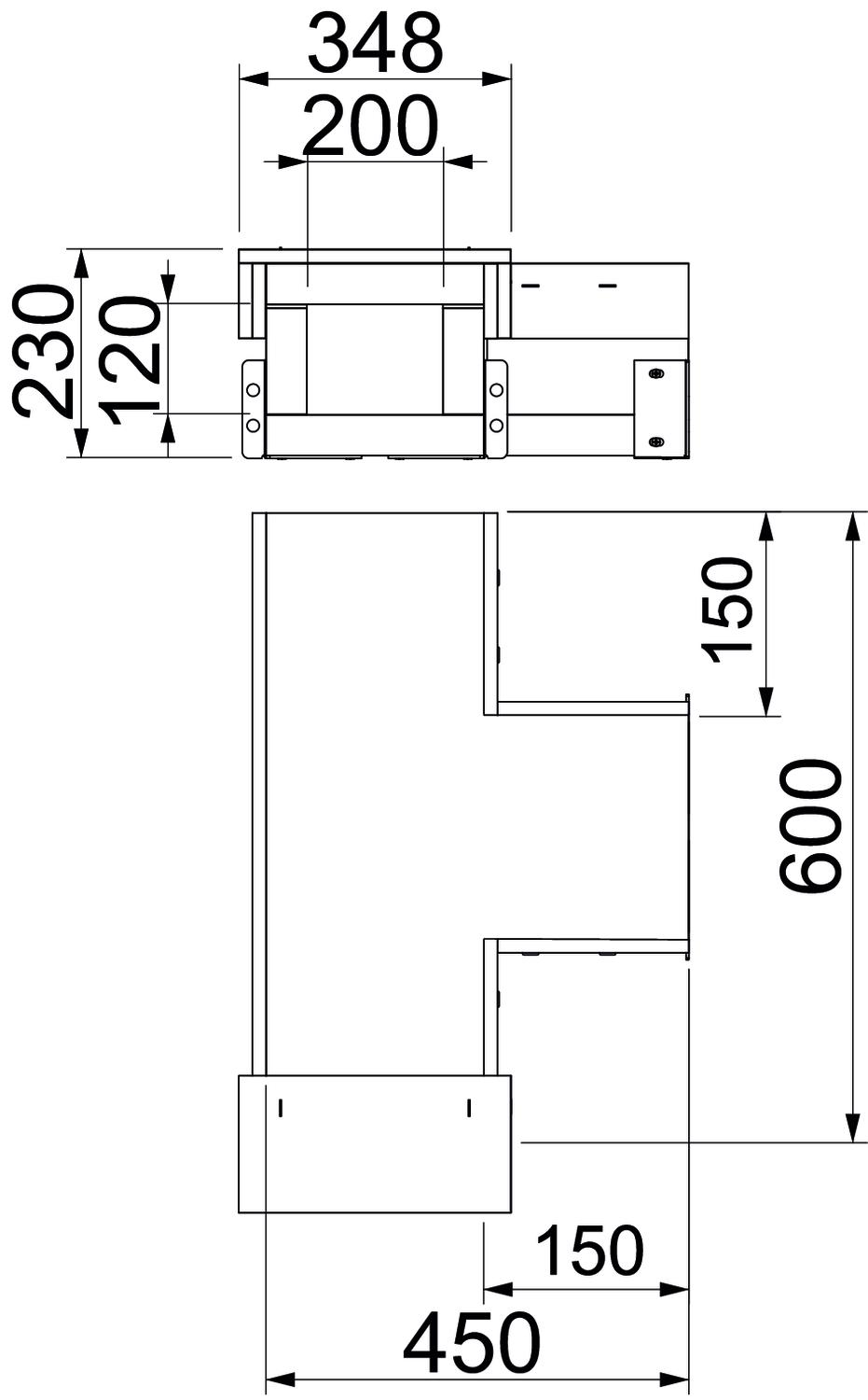
Dimensión 200x120
Material Hormigón ligero con fibra de vidrio
Medida b 200 mm
Medida B 348 mm
Medida h 120 mm
Medida H 230 mm
Medida l 450 mm
Medida L 600 mm
Número de lados que se pueden tratar con llama 4
Revestimiento Sin
Todos los tipos

Todos los tipos

Tipo Medida B Medida b Medida H Medida h Color Código Cantidad Mín. ud. de venta
PLCS T090810 248 mm 100 mm 190 mm 80 mm Gris 7217910
1 Unidad
PLCS T091220 348 mm 200 mm 230 mm 120 mm Gris 7217914
1 Unidad
Descargas

Descargar

Declaración de conformidad UE PLCS T091220 / 7217914 , 0.21MB , pdf
Descargar
Declaración de prestaciones PLCS T091220 / 7217914 , 0.31MB , pdf
Descargar

No hay textos informativos disponibles para este producto