- Descripción de producto
-
Descripción de productoPieza final para canal de protección contra el fuego PYROLINE® Con D EI90, tipo PLCD D091220 compuesto por hormigón ligero con fibra de vidrio, resistente al agua y a las heladas para cerrar los extremos de cables.
Incluidos tornillos de cabeza plana y cintas selladoras pegadas.
-
- Datos técnicos
-
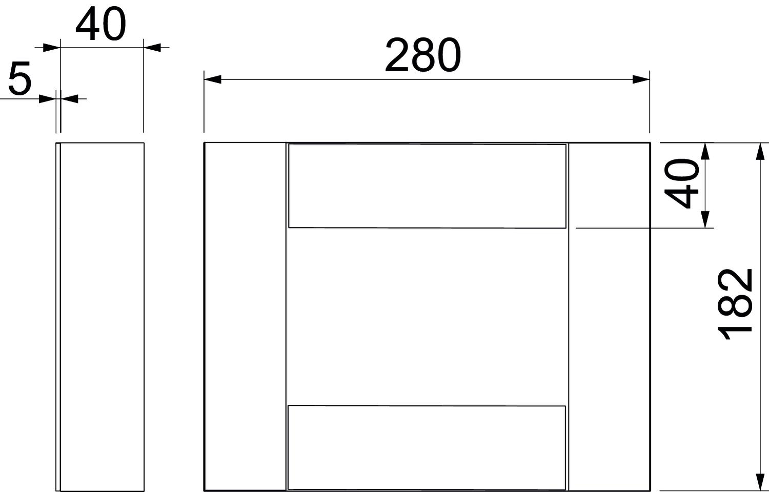
Dimensiones
Altura 182 mm Ancho 280 mm Clasificación EI - Canal de instalación 90 Color Gris Composición del material aislante Hormigón ligero de fibra de vidrio Dimensión 200x120 Longitud 40 mm Material Hormigón ligero con fibra de vidrio Medida A 40 mm Medida B 280 mm Medida H 182 mm Medida L 40 mm Revestimiento Sin Versión izquierda/derecha - Todos los tipos
- Descargas
-
Hoja de datos PLCD E091220 / 7215854 , 0.21MB , pdfCatálogo Fire protection ducts , 8.99MB , pdfDeclaración de conformidad UE PLCD E091220 / 7215854 , 0.21MB , pdfDeclaración de prestaciones PLCD E091220 / 7215854 , 0.31MB , pdfREACH Declaración de conformidad PLCD E091220 / 7215854 , 0.12MB , pdfRoHS Declaración de conformidad PLCD E091220 / 7215854 , 0.13MB , pdfCertificado de homologación Fire protection ducts PYROLINE® Con PLC , 1.30MB , pdfInstrucciones de montaje Instrucciones de montaje de canal de protección contra el fuego PYROLINE® Con BSK , 15.07MB , pdfInstrucciones de montaje Instrucciones de montaje de canal de protección contra el fuego PYROLINE® Con PLC , 14.60MB , pdfNo hay textos informativos disponibles para este producto
Español