Tapa y marco, versión ciega, RK, tamaño nominal 350-3, acero inoxidable

Código 7406028 | EAN 4012195106388

Descripción de producto
Descripción de producto
Tapa ciega y marco para cargas pesadas que permite practicar una abertura de revisión en la caja UZD350-3 en pavimentos que precisan una limpieza en seco o con agua. Sólo son apropiados para pavimentos pulidos.
  • Verband der Elektrotechnik, Elektronik, Informationstechnik e.V., Deutschland (Asociación de Electrotécnicos Alemanes)
  • Comunidad Europea, Declaración de conformidad según las directivas de la CE
  • Huella de CO₂ (PCF)
  • Embalaje totalmente de cartón reciclado
Datos técnicos

Datos técnicos

Carga vertical, superficie grande hasta 3.000 N
Carga vertical, superficie pequeña hasta 3.000 N
Cuidados del suelo húmedo
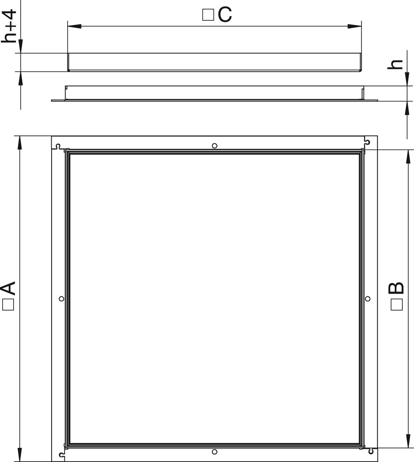
Dimensión 383x383x10
Espesor del revestimiento del suelo 8 mm
Grado de protección (IP) mientras se está utilizando IP00
Grado de protección (IP) si no se está utilizando IP44
Huella de CO2 (GWP) Cradle-to-Gate 27,5009 kg CO2e / 1 Unidad
Material Acero inoxidable 1.4301
Medida A 424 mm
Medida B 388 mm
Medida C 382 mm
Medida h 10 mm
Modelo de salida de cable Sin salida de cable
Soportes para alojar cajas portamecanismos no
Todos los tipos

Todos los tipos

Tipo Medida h Espesor del revestimiento del suelo Código Cantidad Mín. ud. de venta
RK V3 10 10 mm 8 mm 7406028
1 Unidad
RK V3 15 15 mm 13 mm 7406032
1 Unidad
RK V3 20 20 mm 18 mm 7406036
1 Unidad
RK V3 25 25 mm 23 mm 7406040
1 Unidad
RK V3 30 30 mm 28 mm 7406044
1 Unidad
Descargas

Descargar

REACH Declaración de conformidad RK V3 10 / 7406028 , 0.12MB , pdf
RoHS Declaración de conformidad RK V3 10 / 7406028 , 0.13MB , pdf

No hay textos informativos disponibles para este producto