Note: This article is discontinued.

Mounting and connection profile for convection grids, trunking height 90 mm

Item no. 6279826 | EAN 4012195680819

Product description
Product description
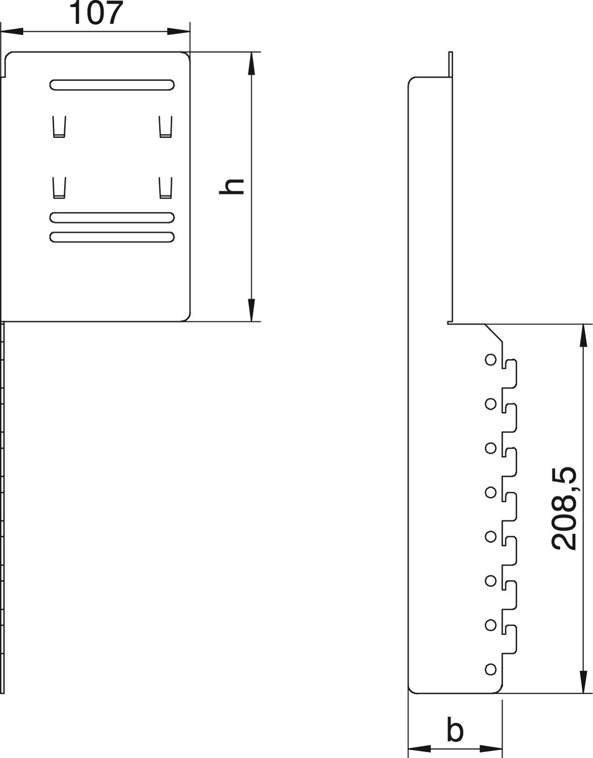
Mounting and connection profile for panel mounting of device installation trunking in conjunction with vertical convection grids. The installation and connection profile is locked onto the fixing panel and accepts the profile connector, type PVV/N2... vertically. Please observe the trunking dimensions.
The mesh slats are simply attached to the slat holder.
  • Communautés Européennes, EC declaration of conformity according to EC directives
  • UKCA declaration of conformity
  • CO₂ footprint (PCF)
  • Packaging without plastic
  • Packaging made entirely from recycled cardboard
Technical data

CO2 footprint (Product Carbon Footprint)

CO2 Footprint (GWP) Cradle-to-Gate 6,0191 kg CO2e / 1 Piece
Colour zinc
Dimension 99x320x88
Fastening type Lockable
for duct dimension 90x130
Height 88 mm
Length 320 mm
Material Steel
Surface Strip galvanized
Trunking mounting Attach and screw
Version for Wall mounting
Width 99 mm
All types

All types

Types for duct dimension Item no. Quantity SSU
MVKG90130 90x130 6279826
1 piece
MVKG90170 90x170 6279828
1 piece
MVKG90210 90x210 6279830
1 piece
Downloads

Download

EU declaration of conformity MVKG90130 / 6279826 , 0.10MB , pdf
Download

No invitation to tender text is available for this product.