PYROLINE® Con S BSK I90/E30 protection duct

Item no. 7215187 | EAN 4012197308421

1000 mm
Product description
Product description
Fire protection duct made from water and frost-proof fibreglass light concrete of building material class A1 according to EN 13501-1 for fireproof laying of cables in rescue and emergency routes, and for the maintenance of electrical functionality of safety-relevant systems. Classification I90 as I duct according to DIN 4102 Part 11 and classification E30 as E duct according to DIN 4102 Part 12.

Mounting of the duct on wall brackets or as ceiling mounting with suspended supports and brackets or on a U transverse profile suspended with threaded rods. Mounted connectors ensure quick mounting in situ, whilst loosely placed covers ensure quick inspection and reassignment.

Fire protection duct with cover and pre-mounted connection fittings, connection crews and sealing strips.
  • Suspended fire protection duct, ceiling mounting I90
  • Suspended fire protection duct, ceiling mounting E30
  • Suspended fire protection duct, wall mounting I90
  • Suspended fire protection duct, wall mounting E30
  • Fire resistance class I90
  • Function maintenance class E30
Technical data

Technical data

Colour Grey
Cover fastening Loose
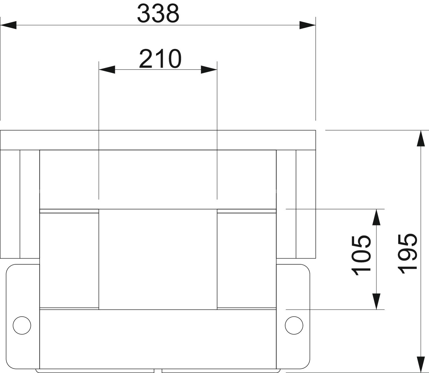
Dimension 1000x105x210
Dimension b 210 mm
Dimension B 338 mm
Dimension H 195 mm
Dimension h 105 mm
Fire resistance class E − function maintenance 30
Fire resistance class I − installation duct 90
Height 195 mm
Jacketing Without
Length 1000 mm
Material Fibreglass lightweight concrete
Material of the insulation Glass-fibre lightweight concrete
Number of flammable sides 4
Partitions possible yes
Usable cross-section 22050 mm²
Width 338 mm
With perforation no
All types

All types

Types Length Dimension B Dimension b Dimension H Dimension h Item no. Quantity SSU
BSKH09-K0506 1000 mm 188 mm 60 mm 140 mm 50 mm 7215175
1 m
BSKH09-K0511 1000 mm 238 mm 110 mm 140 mm 50 mm 7215179
1 m
BSKH09-K0521 1000 mm 338 mm 210 mm 140 mm 50 mm 7215183
1 m
BSKH09-K1021 1000 mm 338 mm 210 mm 195 mm 105 mm 7215187
1 m
Accessories

System accessories

Products Types Item no. Quantity SSU
90° bend for PYROLINE® Con S  BSKH09-K1021 fire protection duct 90° bend for PYROLINE® Con S BSKH09-K1021 fire protection duct BSKH09-B1021 7215616
1 piece
T piece for PYROLINE® Con S BSKH09-K1021 fire protection duct T piece for PYROLINE® Con S BSKH09-K1021 fire protection duct BSKH09-T1021 7215645
1 piece
Rising vertical bend for PYROLINE® Con S BSKH09-K1021 fire protection duct Rising vertical bend for PYROLINE® Con S BSKH09-K1021 fire protection duct BSKH09-VS1021 7215656
1 piece
Falling vertical bend for PYROLINE® Con S BSKH09-K1021 fire protection duct Falling vertical bend for PYROLINE® Con S BSKH09-K1021 fire protection duct BSKH09-VF1021 7215666
1 piece
End piece for PYROLINE® Con S BSKH09-K1021 fire protection duct End piece for PYROLINE® Con S BSKH09-K1021 fire protection duct BSKH09-E1021 7215597
1 piece
Doubler for PYROLINE® Con fire protection duct Doubler for PYROLINE® Con fire protection duct KAD-8040 7215464
1 piece
Doubler for PYROLINE® Con fire protection duct Doubler for PYROLINE® Con fire protection duct KAD-10040 7215462
1 piece
Fire protection duct mortar Fire protection duct mortar KTM 7215500
1 piece
Threaded rod adapter E30 Threaded rod adapter E30 KGA 7215395
1 piece
Separating retainer 45 FS Separating retainer 45 FS TSG 45 FS 6062033
3 m
Separating retainer 85 FS Separating retainer 85 FS TSG 85 FS 6062114
3 m
Bolt for separating retainer fastening, KRS 6x30 Bolt for separating retainer fastening, KRS 6x30 KRS 6x30 3498100
200 piece
Identification plate Identification plate KS-K DE 7214734
10 piece
Identification plate for maintenance of electrical function Identification plate for maintenance of electrical function KS-E DE 7205423
10 piece
Downloads

Download
Download

No invitation to tender text is available for this product.